間取り |

logo

資料請求

tel

来場予約

tel

tel

tel

map

map
image photo image photo

image photo

plan

間取り

全戸2カ所に大型収納設置。使い勝手と住み心地にこだわって。

pick Up plan
pick Up plan
pick Up plan
pick Up plan

基本プラン

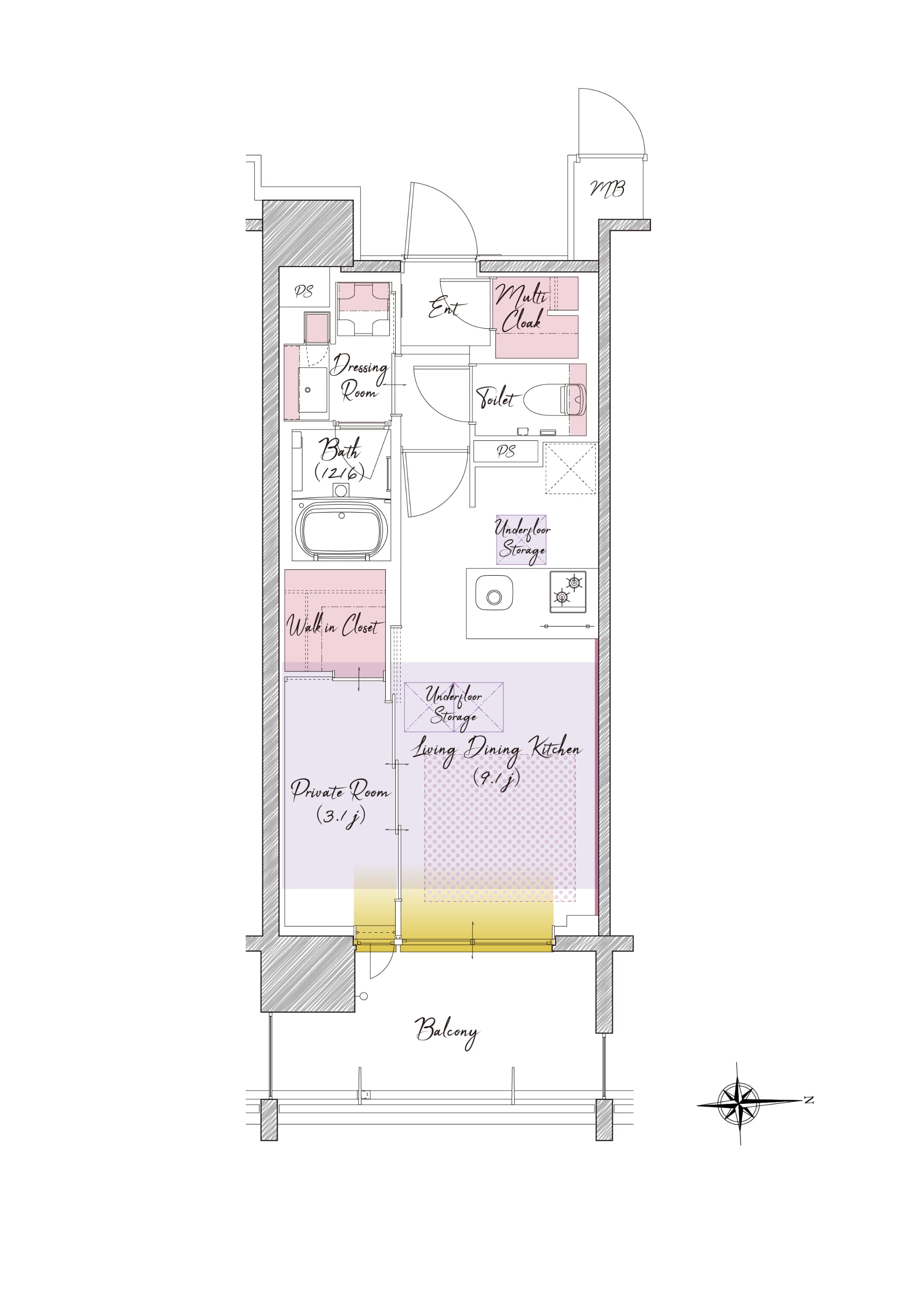
A1 type

2LDK

+ウォークインクロゼット +マルチクローク +トランクルーム

専有面積54.14※トランクルーム0.77㎡含む

A1type A1type
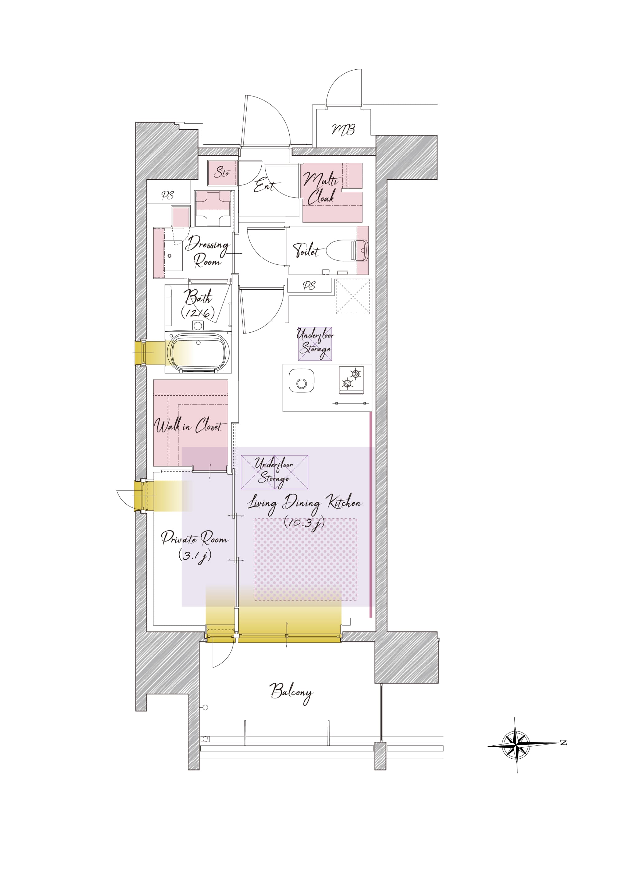
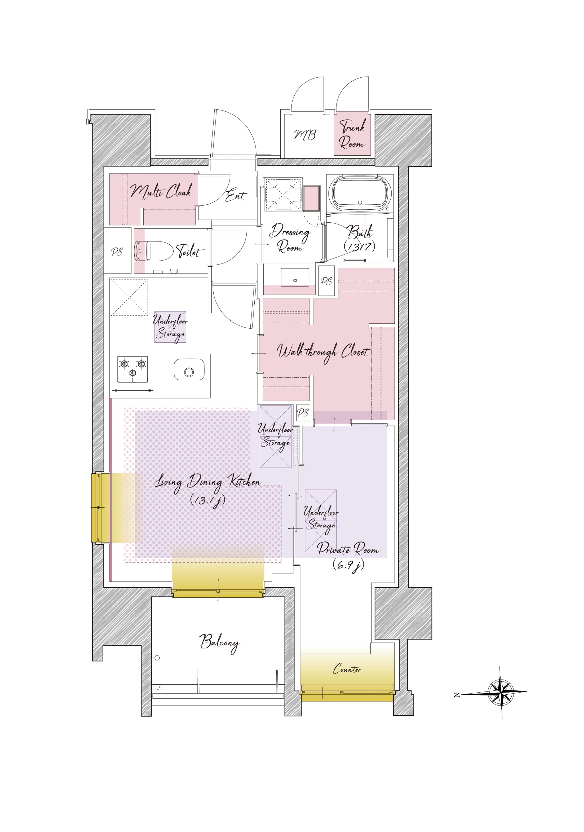
A2 type

大容量床下収納付き

2LDK

+ウォークインクロゼット +マルチクローク +トランクルーム

専有面積54.14※トランクルーム0.77㎡含む

A1type A1type
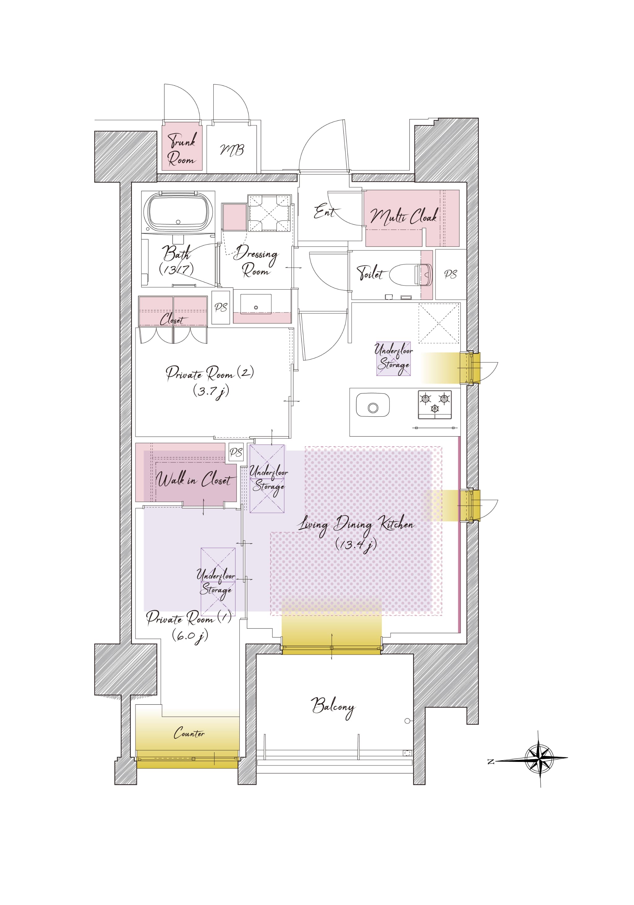
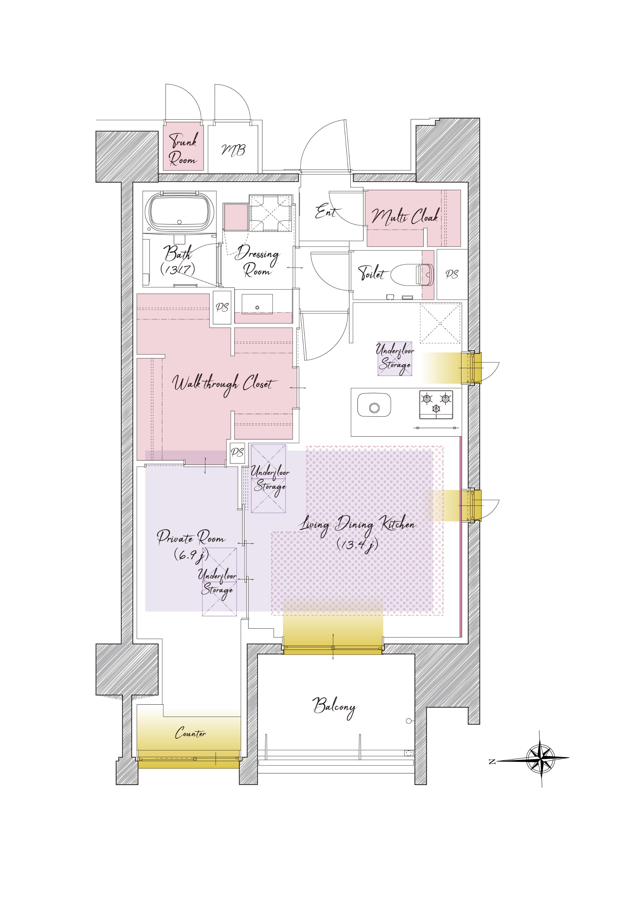
B1 type

2LDK

+ウォークインクロゼット +マルチクローク +トランクルーム

専有面積55.80※トランクルーム0.77㎡含む

B1type B1type
C1 type

1LDK

+ウォークインクロゼット +マルチクローク

専有面積37.41

C1type C1type
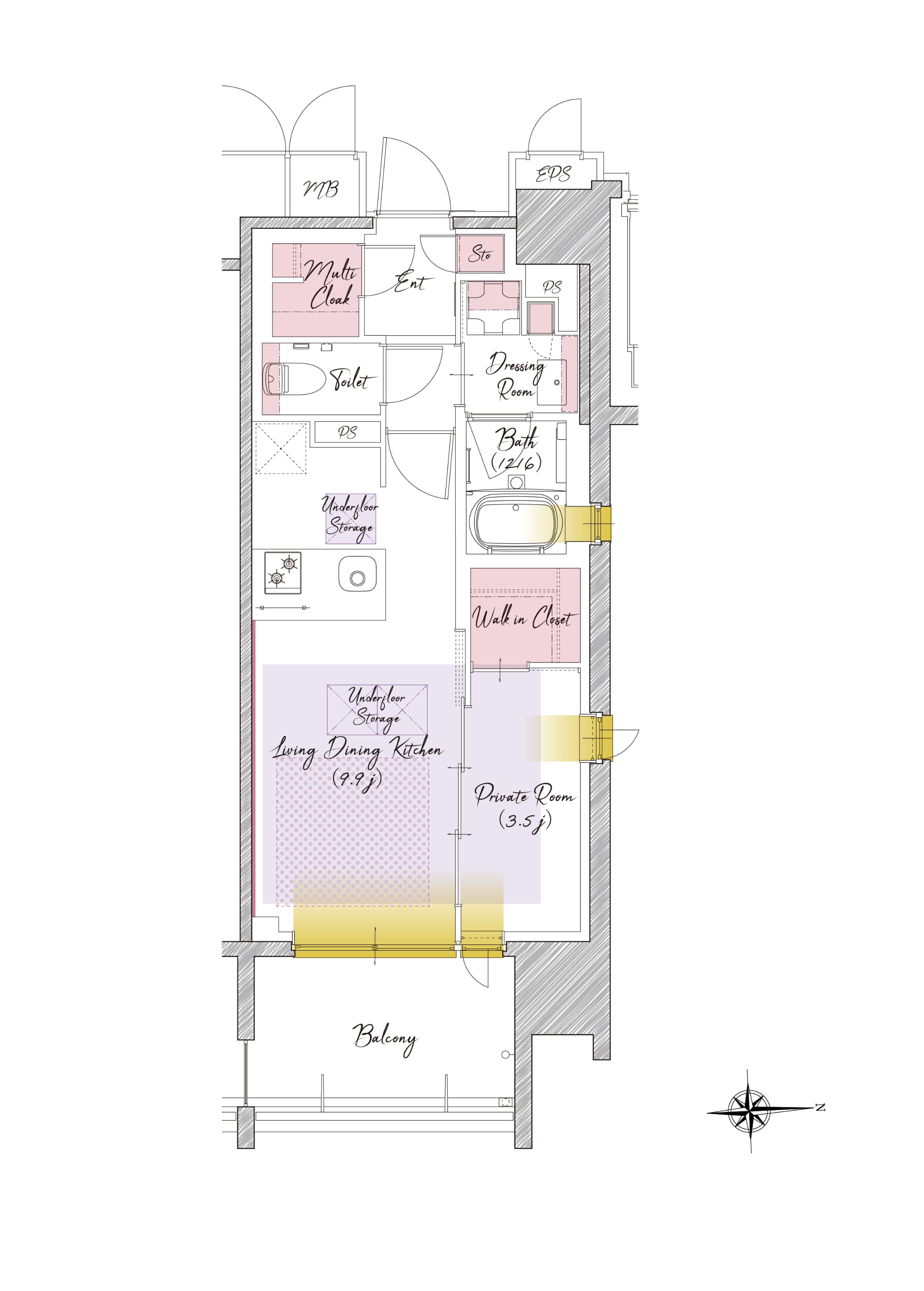
D1 type

1LDK

+ウォークインクロゼット +マルチクローク

専有面積33.21

D1type D1type
D2 type

大容量床下収納付き

1LDK

+ウォークインクロゼット +マルチクローク

専有面積33.21

D2type D2type
E1 type

1LDK

+ウォークインクロゼット +マルチクローク

専有面積36.97

E1type E1type

※掲載の図面は計画段階のもので、変更が生じる場合があります。
※掲載のイラスト間取りに描かれている家具レイアウトは一例です。